15
Nazeing New Road, Broxbourne, EN10
Let Agreed
£1,850 PCM
Fees Info
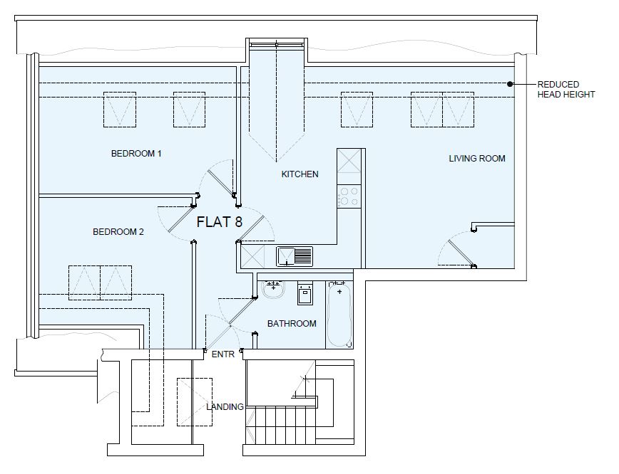
2 bedrooms,
1 bathrooms,
1 receptions
Summary:
Westwood Leber are delighted to bring to the market a selection of modern apartments in Broxbourne situated within walking distance to the train station, these modern apartments boast a sleek and contemporary architectural design, featuring large windows, fully tiled bathrooms and modern finishes throughout. The exterior of the building is aesthetically pleasing and complements the surrounding environment. The interior spaces are thoughtfully designed to maximize natural light and create a sense of openness, with high ceilings and spacious layouts that enhance the overall living experience. Each apartment is offered with an allocated parking space. Electric car charging points available. Contact Westwood Leber today for more information and to book a site visit.
Key Features:
- Stunning Private Gated Development
- EN10
- Available October
- Penthouse
- Close to Local Amenities
- Double Bedrooms
- High Specification
- Allocated Parking with EV Charging
- Modern Bathroom
- Walking Distance to Broxbourne BR Station
Full Details:
Westwood Leber are delighted to bring to the market a selection of modern apartments in Broxbourne situated within walking distance to the train station, these modern apartments boast a sleek and contemporary architectural design, featuring large windows, fully tiled bathrooms and modern finishes throughout. The exterior of the building is aesthetically pleasing and complements the surrounding environment. The interior spaces are thoughtfully designed to maximize natural light and create a sense of openness, with high ceilings and spacious layouts that enhance the overall living experience. Each apartment is offered with an allocated parking space. Electric car charging points available. Contact Westwood Leber today for more information and to book a site visit.
Viewing & Disclaimer:
Please contact us on 01992 443311 if you wish to arrange a viewing appointment for this property, or require further information.
Westwood Leber - EN11 endeavour to maintain accurate depictions of properties in Virtual Tours, Floor Plans and descriptions, however, these are intended only as a guide and purchasers must satisfy themselves by personal inspection.
