27
Home Close, Broxbourne, EN10
Guide price £625,000
5 bedrooms,
4 bathrooms,
- receptions
Summary:
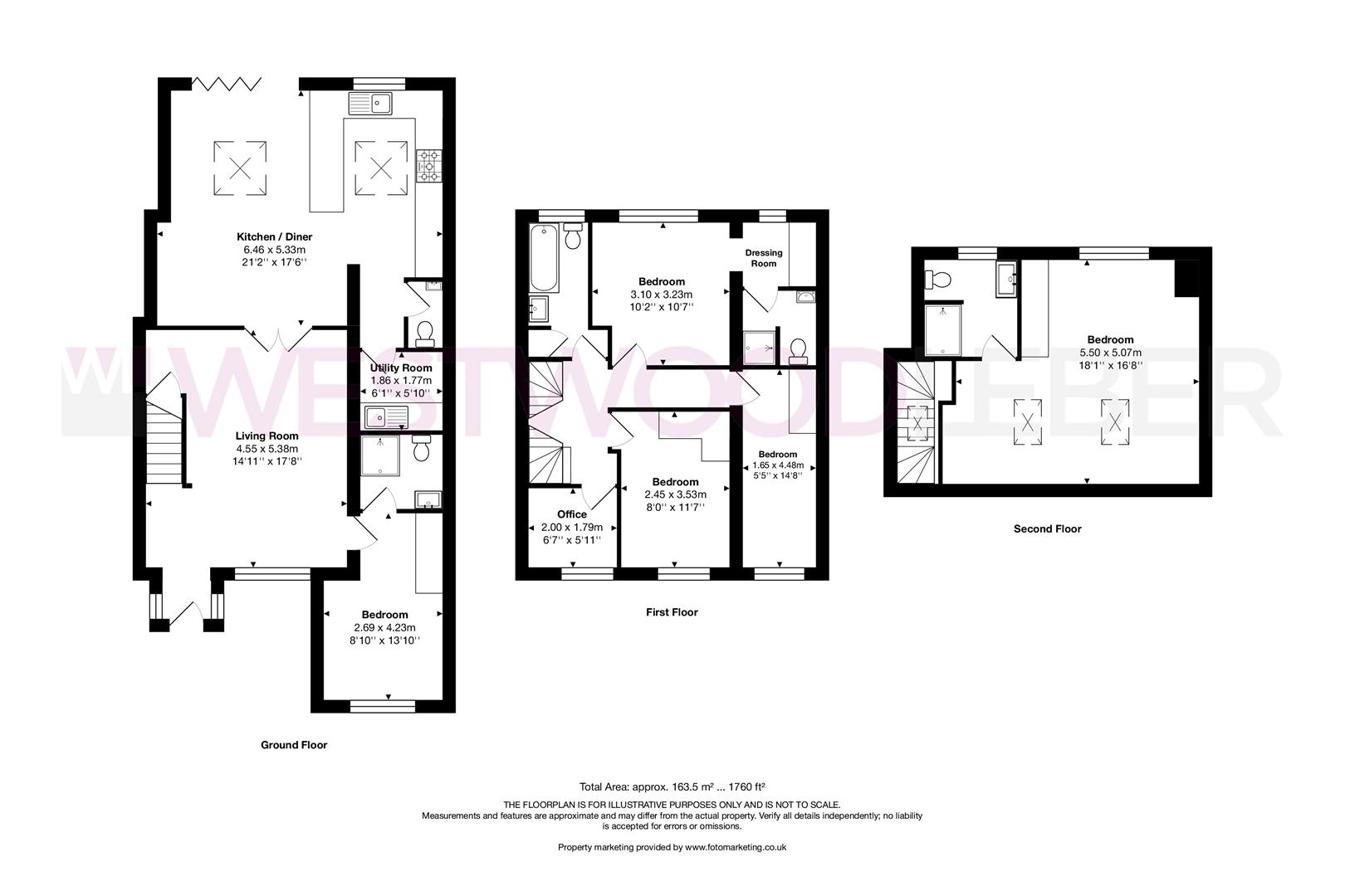
Westwood Leber is thrilled to introduce this exceptional five-bedroom, four-bathroom end-of-terrace family home, ideally positioned within the sought-after Home Close in Broxbourne, presented in modern decorative order throughout and offering versatile accommodation arranged over three floors.The ground floor welcomes you with a spacious entrance hall leading to a generous living room, perfect for family relaxation. To the rear sits an impressive open-plan kitchen/diner, thoughtfully designed to serve as the heart of the home, providing ample space for both everyday living and entertaining. The ground floor further benefits from a utility room and a ground-floor bedroom, ideal for guests, multigenerational living or home working.The first floor hosts several well-proportioned bedrooms, including a principal suite complemented by dressing facilities and en-suite bathroom, along with additional bedrooms serviced by modern bathrooms. A further bedroom and bathroom occupy the second floor, offering excellent flexibility for growing families, teenagers or guests.Externally, the property features a beautifully landscaped rear garden with a versatile outbuilding, ideal as a home office, gym or studio. To the front is a large driveway providing parking for three or more vehicles, complemented by a garage on block offering further storage and parking.Ideally positioned close to local amenities, schools and transport links, this is a superb family home and early viewing is highly recommended.
Key Features:
- Exceptional five-bedroom, four-bathroom end-of-terrace family home arranged over three spacious floors.
- Impressive open-plan kitchen/diner forming the heart of the home, ideal for family life and entertaining.
- Flexible accommodation including a ground-floor bedroom, utility room and multiple modern bathrooms.
- Principal bedroom suite with dressing area and en-suite, plus further well-proportioned bedrooms.
- Landscaped rear garden with versatile outbuilding suitable for a home office, gym or studio.
- Large front driveway providing parking for three or more vehicles, with an additional garage on block for storage or parking .
Full Details:
Viewing & Disclaimer:
Please contact us on 01992 443311 if you wish to arrange a viewing appointment for this property, or require further information.
Westwood Leber - EN11 endeavour to maintain accurate depictions of properties in Virtual Tours, Floor Plans and descriptions, however, these are intended only as a guide and purchasers must satisfy themselves by personal inspection.
