33
Mill Lane, Broxbourne, EN10
Guide price £1,950,000
6 bedrooms,
4 bathrooms,
4 receptions
Summary:
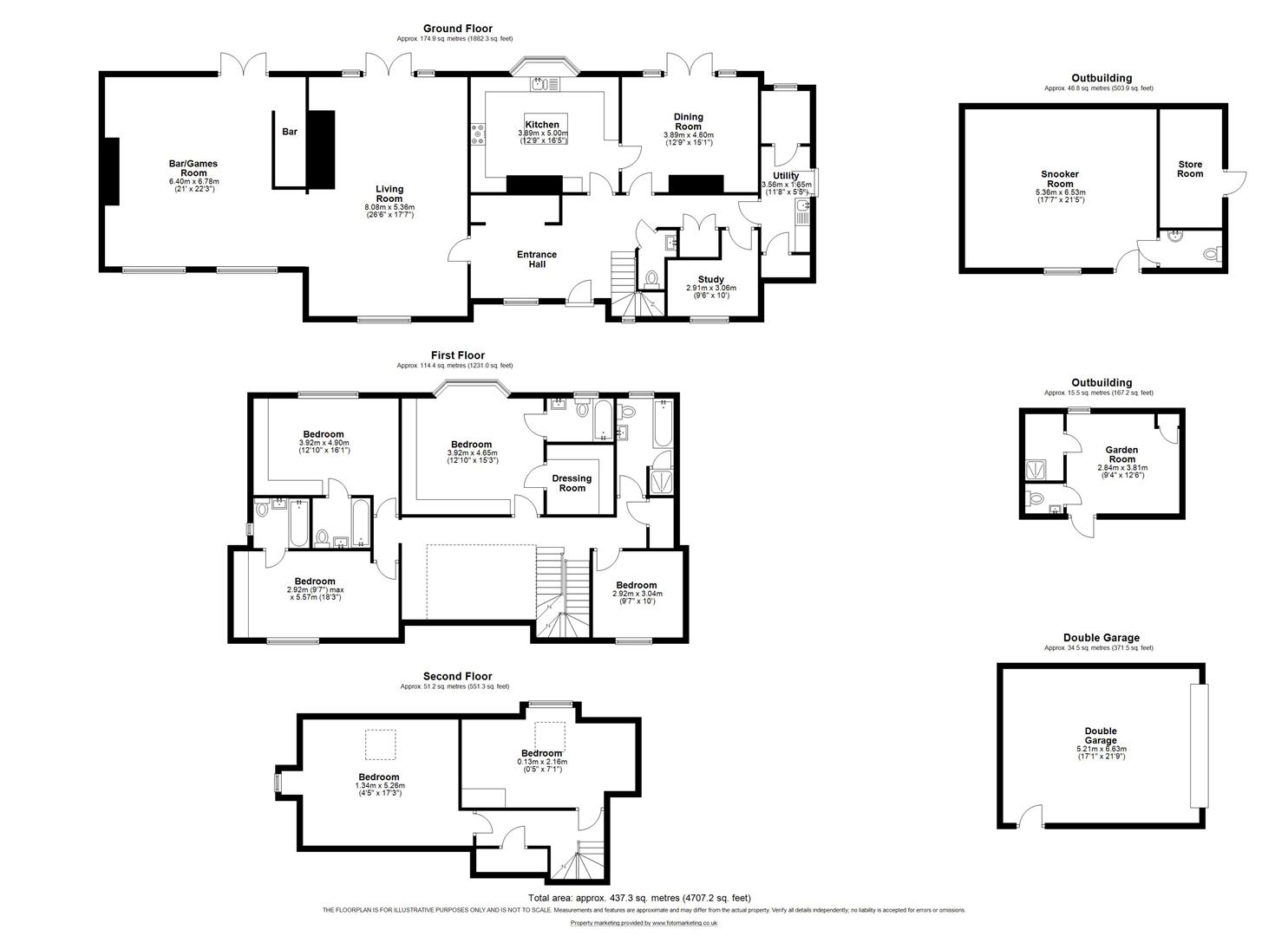
Westwood Leber is delighted to present this truly magnificent six bedroom detached family home, occupying a prime position in the heart of Broxbourne on a 3/4 of an acre plot. This stunning property is just a short walk from Broxbourne station and other local amenities.The house adopts a beautiful period style & boasts a wealth of character throughout, some of which are immediately apparent from your approach to the property. A grand entrance welcomes you upon approach to the property which occupies a central spot facing out on to the common. Once you enter, you are immediately greeted with a warm atmosphere that permeates through the various rooms that this wonderful home is comprised of. The accommodation provides over 4000 sq ft of living space with an extremely versatile and adaptable layout which lends itself well to becoming a very functional home for any incoming family. This property boasts six bedrooms, three of which include en-suite facilities, along with a dressing room adjacent to the master suite.The signature feature of this property is its fabulous plot which is approximately 3/4 of an acre and provides a large sweeping driveway to the front and further off street parking to the rear as well as a double garage and two large outbuildings including a games room. The south facing rear garden is immaculately landscaped, featuring a magnificent variety of plant species, from lush shrubs to vibrant, colourful blooms, and the fragrant beauty of old English roses. Together, they create a peaceful ambiance. Several thoughtfully placed seating areas offer perfect spots for outdoor entertaining amidst this tranquil setting. One additional and unique benefit of this plot is excellent rear access which could open the door for significant development opportunities in the future subject to planning permission.This property is offered chain free and we would highly recommend an internal viewing.
Key Features:
- Magnificent six-bedroom detached family home on a 3/4-acre plot in the heart of Broxbourne.
- Over 4,000 sq ft of versatile living space, including six bedrooms and three en-suites.
- Large sweeping driveway, double garage, two outbuildings, and a games room.
- Excellent rear access with potential for future development (STPP); offered chain-free.
Full Details:
Location:
Mill Lane is one of Broxbourne's most prestigious locations and a highly regarded location amongst local residents. Properties in this position very rarely come on to the market and have proved very popular with City workers due to their proximity to the train station. Opposite the house is Broxbourne Common, a large protected recreational space that adjoins St Augustine's Church. A short walk across the common and you will find yourself at Broxbourne High Street and Broxbourne Station. Due to the central location and untouched nature of the plot, this truly is both a unique and remarkable opportunity. The overall plot is very impressive in size. We believe there to be excellent potential for further development of the house and to the rear of the plot (subject to approval from the local council). The garden is south facing with excellent screening in the form of mature trees & hedged boundaries.
Broxbourne Station is fantastic for commuting, with direct access to London Liverpool Street, Tottenham Hale, Stratford & Cambridge. The A10 is a short drive away providing a road link south to the M25 or north heading to Cambridge. Schooling locally is also held in high regard with various private and local comprehensive schools nearby, including Haileybury and Broxbourne School.
Viewing & Disclaimer:
Please contact us on 01992 443311 if you wish to arrange a viewing appointment for this property, or require further information.
Westwood Leber - EN11 endeavour to maintain accurate depictions of properties in Virtual Tours, Floor Plans and descriptions, however, these are intended only as a guide and purchasers must satisfy themselves by personal inspection.
