25
Springfields, Broxbourne, EN10
£1,250,000
5 bedrooms,
4 bathrooms,
2 receptions
Summary:
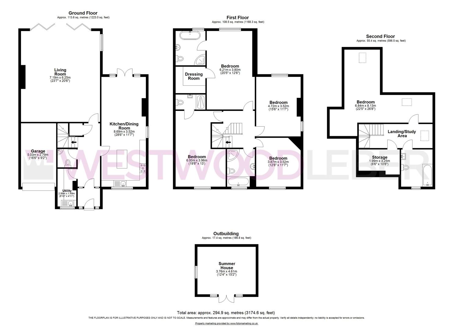
Westwood Leber is thrilled to present this exceptional five-bedroom detached family home, located on a highly sought-after residential road in Broxbourne. This stunning property is set over three floors and has been thoughtfully extended and immaculately kept, offering close to 3000 sq. ft. of versatile living space designed for modern family life.The ground floor features a large kitchen/dining room which leads seamlessly out to a modern and sociable outdoor kitchen area perfect for entertaining, a fabulous family room with bi-folding doors alongside a separate reception room ideal for a study or playroom, large entrance hall, utility room and convenient downstairs W/C.Upstairs, the first floor comprises four generously-sized bedrooms, including an impressive master suite with an en-suite bathroom and dressing room. three additional double bedrooms (one of which with an en-suite shower room and a superb four-piece family bathroom complete this level.Outside, the property boasts a large front driveway with an EV charger and garage access. The beautifully landscaped rear garden is seamlessly connected to the home via bi-folding doors from the family room, creating a harmonious indoor-outdoor flow. A pergola provides a charming outdoor retreat and currently features a high quality outdoor kitchen, while a substantial outer-building offers a versatile space ideal for working from home, a gym or just additional family use.An early viewing is highly recommended to fully appreciate the quality and exceptional features of this property.
Key Features:
- Exceptional five-bedroom detached family home on a prestigious Broxbourne road
- Offering nearly 3000 sq. ft. of beautifully extended and maintained living space across three floors.
- Spacious ground floor includes a large kitchen/dining area with access to a high-end outdoor kitchen, a family room with bi-folding doors, a separate reception room, utility room, and downstairs W/C.
- Landscaped rear garden seamlessly blends indoor and outdoor living, with bi-folding doors from the family room and a pergola-covered outdoor kitchen area.
- Large front driveway with garage access and EV charger, plus a substantial outer-building ideal for a home office, gym, or extra family space.
Full Details:
Viewing & Disclaimer:
Please contact us on 01992 443311 if you wish to arrange a viewing appointment for this property, or require further information.
Westwood Leber - EN11 endeavour to maintain accurate depictions of properties in Virtual Tours, Floor Plans and descriptions, however, these are intended only as a guide and purchasers must satisfy themselves by personal inspection.
