23
Taylors Avenue, Hoddesdon, EN11
OIEO £500,000
4 bedrooms,
2 bathrooms,
- receptions
Summary:
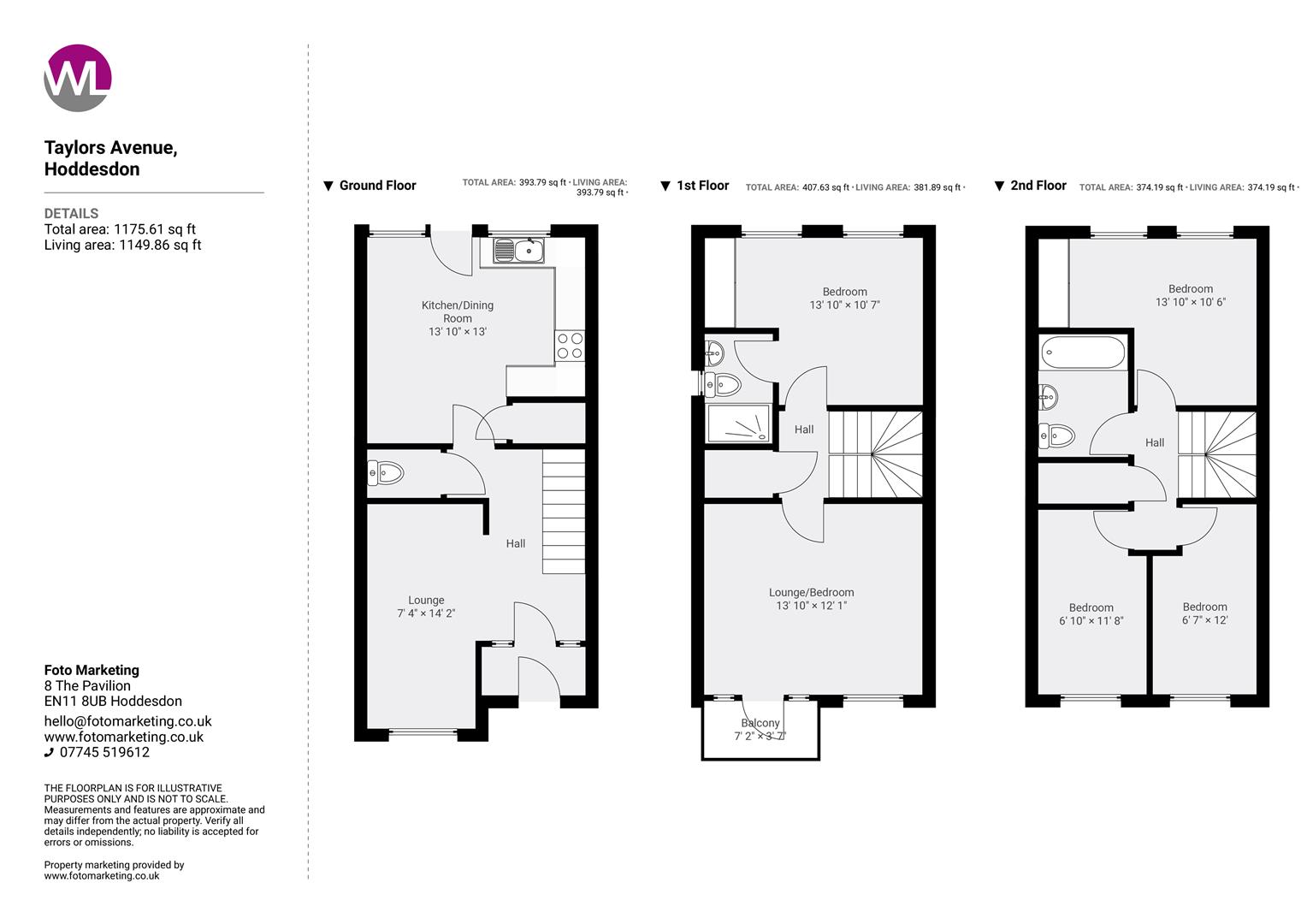
Westwood Leber are delighted to bring to the market this beautifully presented four-bedroom end of terrace family home situated on the ever-popular Taylors Avenue in Hoddesdon. Offering generous and versatile accommodation arranged over three floors and extending to over 1,100 sq ft, this impressive home is ideal for growing families seeking space, convenience and modern living.The ground floor comprises a welcoming entrance hall leading to a bright and comfortable lounge, providing an excellent space for relaxing. To the rear of the property is a spacious kitchen/dining room, thoughtfully designed with ample worktop and storage space while offering plenty of room for family dining and entertaining. A convenient ground floor cloakroom completes the downstairs accommodation.The first floor hosts two well-proportioned bedrooms alongside a modern shower room. One of the rooms is currently used as an additional lounge and benefits from access to a private balcony, offering flexibility for a variety of uses including a bedroom, reception room or home office.The second floor provides three further bedrooms along with a well-appointed family bathroom, creating excellent accommodation for family members or guests.Externally, the property benefits from a good size rear garden, providing an ideal outdoor space for relaxing, entertaining or family activities. To the front, a driveway provides off-street parking for two vehicles, adding further practicality to this fantastic home.Taylors Avenue is conveniently located within easy reach of Hoddesdon town centre, offering a wide range of shops, restaurants and local amenities, as well as excellent schooling and transport links nearby.This superb home is presented in excellent condition throughout, and an internal viewing is highly recommended to fully appreciate the space, flexibility and location this wonderful property has to offer.
Full Details:
Viewing & Disclaimer:
Please contact us on 01992 443311 if you wish to arrange a viewing appointment for this property, or require further information.
Westwood Leber - EN11 endeavour to maintain accurate depictions of properties in Virtual Tours, Floor Plans and descriptions, however, these are intended only as a guide and purchasers must satisfy themselves by personal inspection.
