12
Brewery Road, Hoddesdon, EN11
£199,995
1 bedrooms,
1 bathrooms,
1 receptions
Summary:
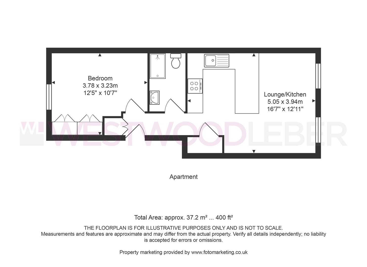
** PERFECT FOR FIRST TIME BUYERS OR AN INVESTMENT OPPORTUNITY ** Westwood Leber are delighted to bring to the market this immaculately presented one double bedroom converted apartment in the heart of Hoddesdon's town centre. This fantastic property offers well-designed living space throughout, featuring a contemporary open plan kitchen/lounge, a spacious double bedroom, and a modern three-piece bathroom suite. Further benefits include off-street allocated parking and a town centre location. An internal viewing is highly recommended!
Key Features:
- A great opportunity for those entering the property market or seeking a rental investment.
- Situated in the heart of Hoddesdon with easy access to local amenities and transport links.
- Features a stylish open plan kitchen and lounge area, perfect for contemporary living.
- Offers generous space and comfort for a relaxing retreat.
- Includes a modern and well-maintained bathroom suite.
- Added convenience with dedicated parking included.
Full Details:
Viewing & Disclaimer:
Please contact us on 01992 443311 if you wish to arrange a viewing appointment for this property, or require further information.
Westwood Leber - EN11 endeavour to maintain accurate depictions of properties in Virtual Tours, Floor Plans and descriptions, however, these are intended only as a guide and purchasers must satisfy themselves by personal inspection.
