27
Rye Road, Hoddesdon, EN11
SSTC
£575,000
3 bedrooms,
2 bathrooms,
1 receptions
Summary:
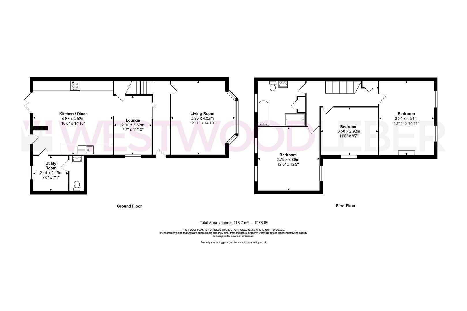
Westwood Leber are delighted to bring to the market this stunning, fully refurbished three-bedroom detached home, ideally located just a five-minute walk from Rye House Train Station, offering excellent access to London and surrounding areas.This immaculate property has been thoughtfully modernised throughout to an exceptional standard. The ground floor boasts a spacious open-plan kitchen/diner, a separate lounge, and a bright and airy living room – perfect for both entertaining and everyday family life. The home also benefits from a downstairs W/C and a separate utility room, adding practicality to the elegant design.Upstairs, you’ll find three large double bedrooms, each offering generous space and versatility. The stylish family bathroom has been finished with high-quality fittings, reflecting the attention to detail seen throughout the home.Externally, the property features a private rear garden, a large driveway with parking for at least three cars, and a single garage.This home offers the perfect blend of space, style, and location – ideal for families or professionals. Early viewing is highly recommended.
Key Features:
- Stunning fully refurbished three-bedroom detached home.
- Modernised throughout to an exceptional standard, offering a stylish and contemporary feel.
- Three generous double bedrooms upstairs, complemented by a sleek, high-quality family bathroom.
- Private rear garden, large driveway accommodating at least three vehicles, and a single garage.
- A five-minute walk from Rye House Train Station with excellent London links.
Full Details:
Viewing & Disclaimer:
Please contact us on 01992 443311 if you wish to arrange a viewing appointment for this property, or require further information.
Westwood Leber - EN11 endeavour to maintain accurate depictions of properties in Virtual Tours, Floor Plans and descriptions, however, these are intended only as a guide and purchasers must satisfy themselves by personal inspection.
