32
Nursery Road, Waltham Abbey, EN9
£899,995
4 bedrooms,
2 bathrooms,
- receptions
Summary:
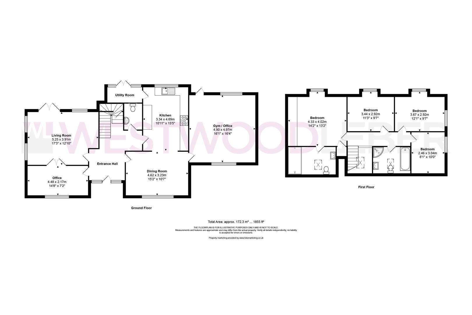
Westwood Leber are delighted to bring to the market this beautifully presented and deceptively spacious four-bedroom family home, offering over 1,850 sq ft of versatile living accommodation. Situated on the ever-popular Nursery Road, this property enjoys a prime location close to Broxbourne Rail Station, a parade of local shops, and outstanding countryside walks, making it ideal for commuters and families alike.The ground floor offers an impressive layout, featuring a bright and airy living room, a separate formal dining room perfect for entertaining, and a modern, well-appointed kitchen that enjoys direct access to the rear garden. There is also a useful utility room and ground floor W/C, along with a dedicated home office to the front of the property. To the rear, a large gym or additional office space provides excellent flexibility and could easily be adapted to suit a range of lifestyle needs.Upstairs, the property boasts four well-proportioned bedrooms, including a generous principal bedroom with fitted wardrobes and an en-suite bathroom. The remaining bedrooms are equally well-sized and enjoy an abundance of natural light, with several offering lovely views over open countryside. A family bathroom completes the first-floor accommodation.Externally, the home benefits from a wide driveway providing off-street parking, and a private rear garden offering excellent outdoor space. This is a rare opportunity to acquire a substantial and flexible home in one of Nazeing's most sought-after locations. Early viewing is highly recommended.
Full Details:
Viewing & Disclaimer:
Please contact us on 01992 443311 if you wish to arrange a viewing appointment for this property, or require further information.
Westwood Leber - EN11 endeavour to maintain accurate depictions of properties in Virtual Tours, Floor Plans and descriptions, however, these are intended only as a guide and purchasers must satisfy themselves by personal inspection.
