31
Sells Road, Ware, SG12
SSTC
£499,995
3 bedrooms,
2 bathrooms,
- receptions
Summary:
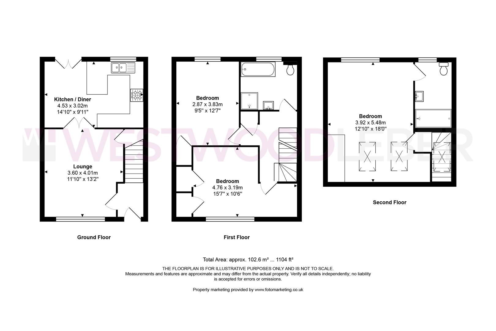
Westwood Leber are delighted to bring to the market this beautifully presented three double bedroom family home, tucked away in a quiet cul-de-sac in Ware. The property has been tastefully updated and improved throughout by the current owners, offering spacious and modern accommodation arranged over three floors.The ground floor features a stunning open-plan kitchen/dining room, perfect for entertaining, along with a separate lounge. On the first floor, you’ll find two generous double bedrooms and a contemporary family bathroom. The top floor boasts a large master suite complete with its own en-suite shower room.Externally, the property offers a beautifully landscaped and deceptively spacious garden, ideal for socialising and outdoor living. To the front, there is a large private driveway providing off-street parking for two cars.
Key Features:
- Beautifully presented three double bedroom family home in a peaceful Ware cul-de-sac.
- Spacious, modern accommodation arranged over three floors.
- Stunning open-plan kitchen/dining room plus separate lounge.
- Two generous double bedrooms & sleek family bathroom on the first floor.
- Impressive top-floor master suite with en-suite shower room.
- Landscaped rear garden & private driveway with off-street parking for two cars.
Full Details:
Viewing & Disclaimer:
Please contact us on 01992 443311 if you wish to arrange a viewing appointment for this property, or require further information.
Westwood Leber - EN11 endeavour to maintain accurate depictions of properties in Virtual Tours, Floor Plans and descriptions, however, these are intended only as a guide and purchasers must satisfy themselves by personal inspection.
